Renovating a house in the picturesque hills of southeaster Slovenia.
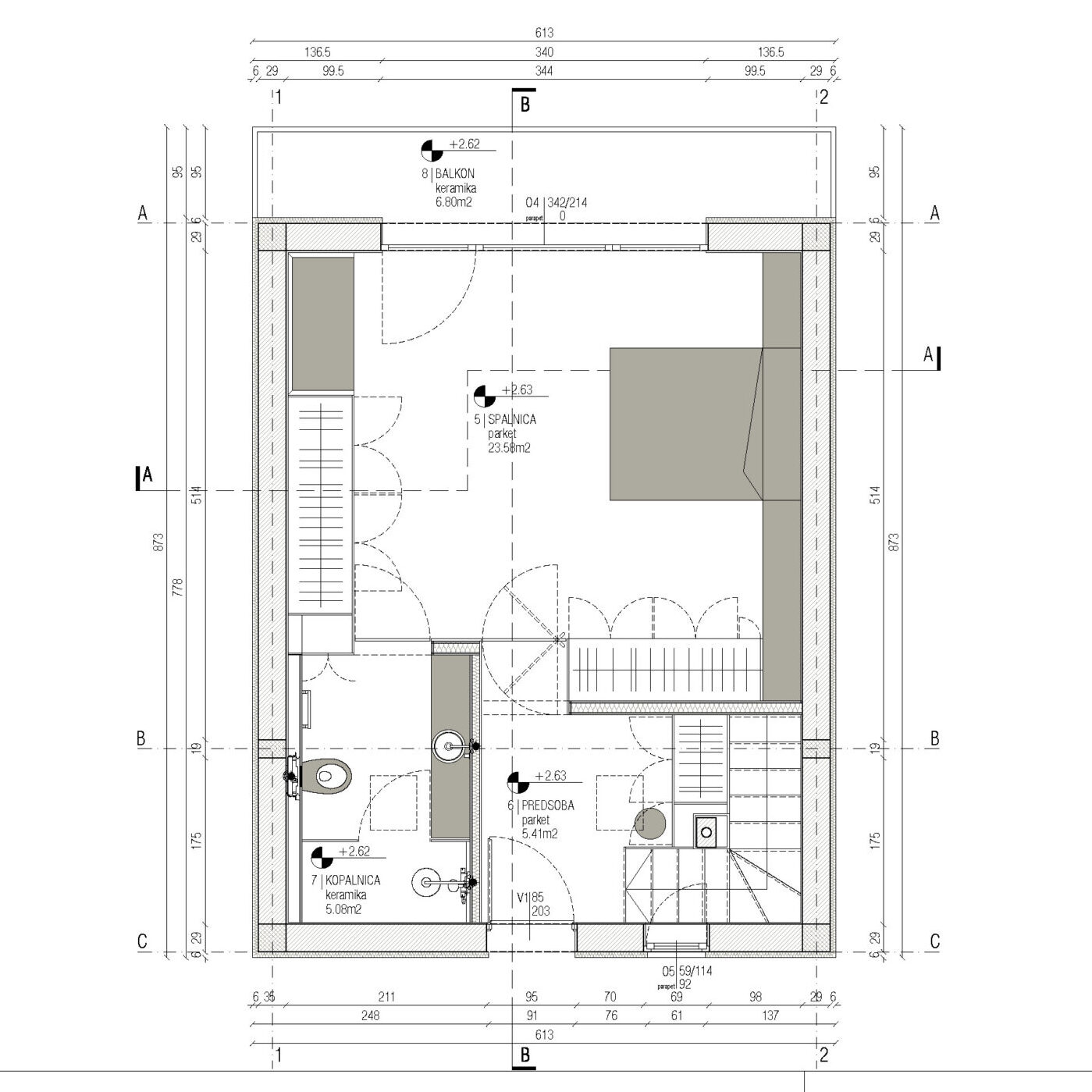
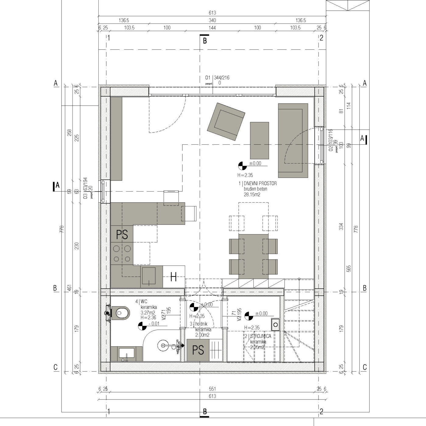
The assignment was to convert an old family house to a minimalist summer house for a single person. The layout had to be completely altered and the got a new minimalist look with plenty of hidden cabinets and closets. The door between the rooms inside the house are all following a theme of hidden passages. We did this by making all the doors look the same as closet doors. This way, the space becomes clear of visual interruptions.